Добро пожаловать на http://vipplan.ru

Випплан Артем - это тысячи проектов домов в нашем каталоге!

Вы всегда сможете найти для себя проект дома вашей мечты! Даже если этого не случилось, мы готовы в любую минуту предложить проект индивидуального дома.

Забыли пароль?
Вы еще не регистрировались?

Перейдите по ссылке ниже на страницу регистрации.

Регистрация...

Внимание!!!

В проектную документацию могут быть внесены изменения любой сложности, в соответствии в Вашими пожеланиями!

Полезные статьи

Проекты быстровозводимых домов и коттеджей в Артеме

Некоторые люди до сих пор считают, что быстровозводимые дома представляют собой безликие, недолговечные, однотипные строения. Эти утверждения не соответствуют действительности. На данный момент, строительные технологии шагнули вперед и дома «быстрого приготовления» считаются эталоном комфорта, уюта и даже выделяются, в архитектурном плане, на фоне дорогих кирпичных коттеджей. Быстровозводимые дома не дорогие и изготавливаются в кратчайшие сроки....

Выбор проекта дома в Артеме. Типовой или индивидуальный?

Строительство дома начинается с выбора проекта. От него будет зависит удобство, комфорт и функциональность Вашего будущего дома. Какой проект выбрать? В каталоге проектов домов VIPplan Артем предоставлен огромный выбор проектов на любой вкус и кошелек. В итоге выбор сводится к покупке типового проекта дома или заказа индивидуального проекта. Для упращения задачи, расскажем о каждом варианте по отдельности...

Проекты домов и коттеджей > Каталог проектов домов > Дом с мансардой и террасой Vg2476

Дом с мансардой и террасой Vg2476

Дом с мансардой и террасой
Зарегистрируйтесь

Проект № Vg2476


Техническое описание
Общая площадь: 174.17 м2
Жилая площадь: 82.56 м2
Высота здания: 8.75 м
Размеры дома: 12.1м×13.21м
Кол-во комнат: 7
Цокольный этаж: нет
Гараж: нет
Мансарда: есть

Kонструкция
Фундамент: монолитная ж/б плита
Перекрытия: монолитное ж/б
Материал стен: material_mon

Архитектурный раздел
Конструктивный раздел
Инженерный раздел
Смета на строительство
АР+КР - 56 000 (Со скидкой 20%)
АР+КР+ИР - 116 900 (Со скидкой 50%)
Дом с мансардой и террасой с размерами здания 12,1х13,21 м. Наружная отделка здания – сайдинг. Фундамент – монолитная ж/б плита. Наружные стены – ж/б каркас с заполнением газобетонными блоками, минеральной ватой и обшивкой сайдингом. Перегородки – гипсокартон. Пол 1 этажа - по монолитной плите. Межэтажное перекрытие - монолитное ж/б. Крыша двускатная. Кровля – металлочерепица. Окна — металлопластиковые.
Генплан застройки участка / Паспорт проекта 7000 руб / 10000 руб
Инженерный раздел (полный) 60900 руб (87000 руб)
Смета на строительство 32625 руб (43500 руб)
Теплотехнический расчет материалов стен Бесплатно
Стоимость проекта со незначительнми изменениями 65650 руб
Стоимость проекта со средними изменениями* 78700 руб
Стоимость проекта со значительными изменениями** 82200 руб

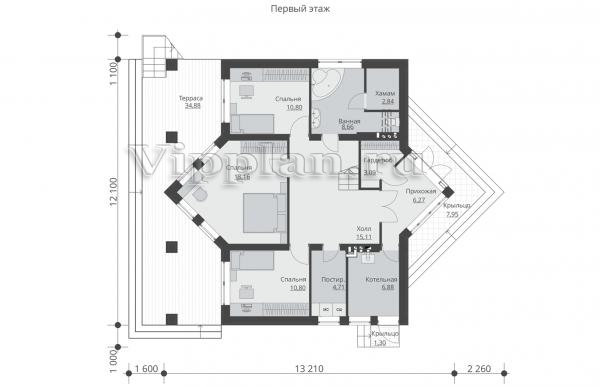
План первого этажа


Прихожая — 6,27 м2
Холл — 15,11 м2
Котельная — 6,88 м2
Постирочная — 4,71 м2
Спальня — 10,8 м2
Спальня — 18,16 м2
Спальня — 10,8 м2
Ванная — 8,66 м2
Хамам — 2,84 м2
Гардероб — 3,09 м2

План мансардного этажа


Гостиная — 26,5 м
Спортзал — 12,18 м2
Мастерская — 10,5 м2
Каминная — 16,3 м2
Балкон — 2,21 м2
Кухня — 10,94 м2
Кладовая — 5,84 м2
Балкон — 2,38 м2
Дом с мансардой и террасой Дом с мансардой и террасой Дом с мансардой и террасой Дом с мансардой и террасой

Модификации проектов

Внесение изменений и привязка к участку строительства

В любой из проектов от компании VIPplan - Артем по вашему желанию могут быть внесены изменения в материалы стен, материалы наружной отделки дома, а также будет произведена адаптация проекта под конкретный регион строительства (с учетом грунтов региона, геологических особенностей вашего участка и местных климатических условий) - БЕСПЛАТНО !!! (кроме проектов со скидкой и проектов наших партнеров).

Любой из проектов, размещенных на сайте artem.vipplan.ru мы можем выполнить из требуемых вам строительных материалов: ячеистый бетон (газобетон, пеноблок), керамоблок, кирпич, шлакоблок, бетонный блок, дерево (брус, клееный брус), каркасная технология (деревянный каркас, металлокаркас (ЛСТК)).

Фасад дома и его наружную отделку так же возможно выполнить с применением различных облицовочных материалов: структурной штукатурки, (с утеплителем и без), сайдингом (пластиковый или металлосайдинг), фиброплитами, кирпича.

 
6 Избранные
проекты

Доставка проектов по России: Москва (Московская область), Санкт-Петербург (Ленинградская область), Краснодар, Ростов-на-Дону, Ставрополь, Сочи, Волгоград, Новосибирск, Белгород, Брянск, Воронеж, Саратов, Хабаровск, Астрахань, Нальчик, Владикавказ, Екатеринбург, Тюмень, Самара, Нижний Новгород, Казань, Пермь, Уфа, Челябинск, Красноярск, Ханты-Мансийск, Иркутск, Курган, Оренбург, Омск, Томск, Барнаул, Новокузнецк, Кемерово, Абакан, Чита, Якутск, Южно-Сахалинск, Петропавловск-Камчатский и страны ближнего зарубежья: Белоруссия, Украина, Казахстан